項目概況
業(yè)主是兩兄弟,久居上海,地基比較緊湊,正面朝西,唯一的路只有2米,走材料等都不方便,恰逢鄰居也要重新建房,所以趁此機會想把老房子重建。
本項目總建筑面積759.8㎡,其中一層建筑面積151.7㎡,二層151.7㎡,三層面積161.5㎡,四層面積157.6㎡,閣樓面積137.3㎡。

▲總平面圖
戶型設計

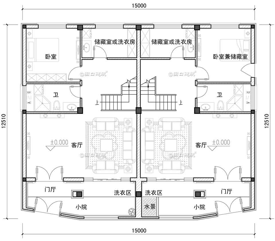
▲一層平面圖
每戶均設計了門廳、客廳、衛(wèi)、臥室、儲藏室;

▲二層平面圖
每戶均設計了廚房、餐廳;

▲三層平面圖
每戶均設計了三個臥室(其中一個帶衣帽間)、公共衣帽間、衛(wèi);

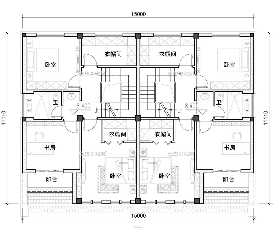
▲四層平面圖
每戶均設計了兩臥室(其中一個帶衣帽間)、書房、公共衣帽間、陽臺;

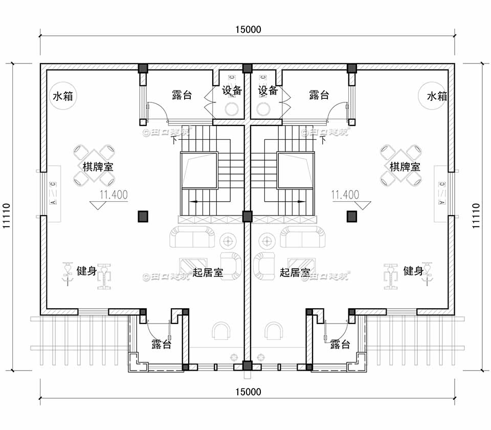
▲閣樓平面圖
每戶均設計了起居室、健身房、棋牌室等可以自己劃分、兩個露臺;
造型設計

▲西北角鳥瞰圖

▲東南角鳥瞰圖

▲正立面透視圖

▲西南角透視圖

▲南立面透視圖

▲東南角透視圖

▲西北角透視圖

▲入口透視圖
END