項目概況
本項目位于紹興諸暨店口鎮(zhèn),總建筑面積476.5㎡,其中一層建筑面積為169.13㎡,二層建筑面積為169.13㎡,三層建筑面積138.24㎡。

▲東南角鳥瞰圖
戶型設計

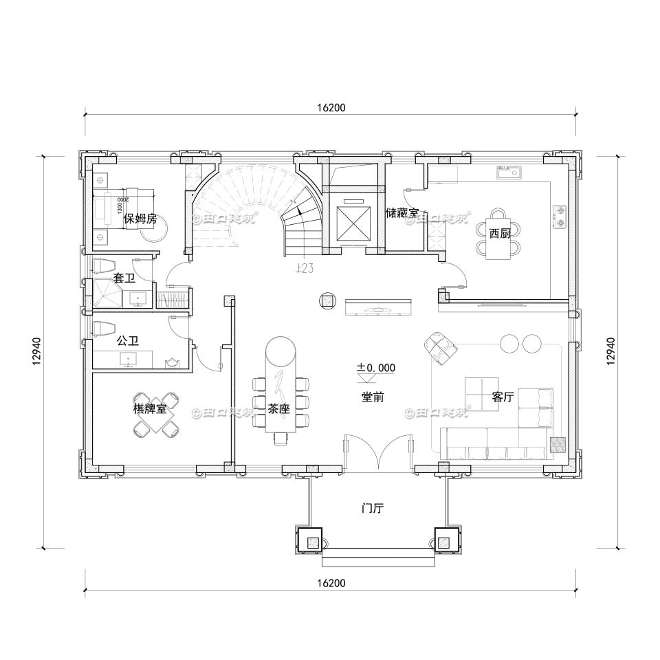
▲一層平面圖
一層:門廳、堂前、挑空客廳、茶座、餐廳、中西廚房、儲藏室、保姆房套房、棋牌室、公衛(wèi);

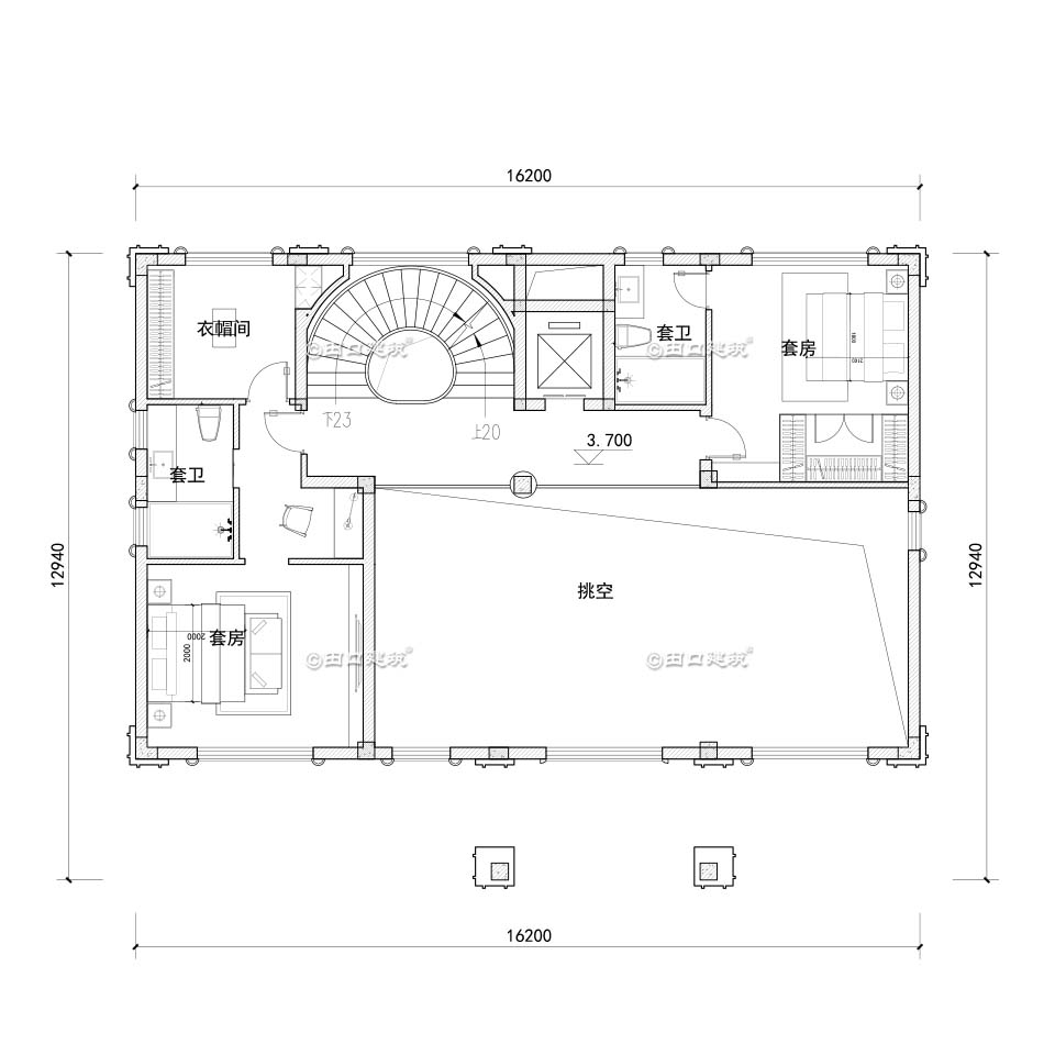
▲二層平面圖
二層:大套房(含套衛(wèi)、衣帽間)小套房(含套衛(wèi)); 
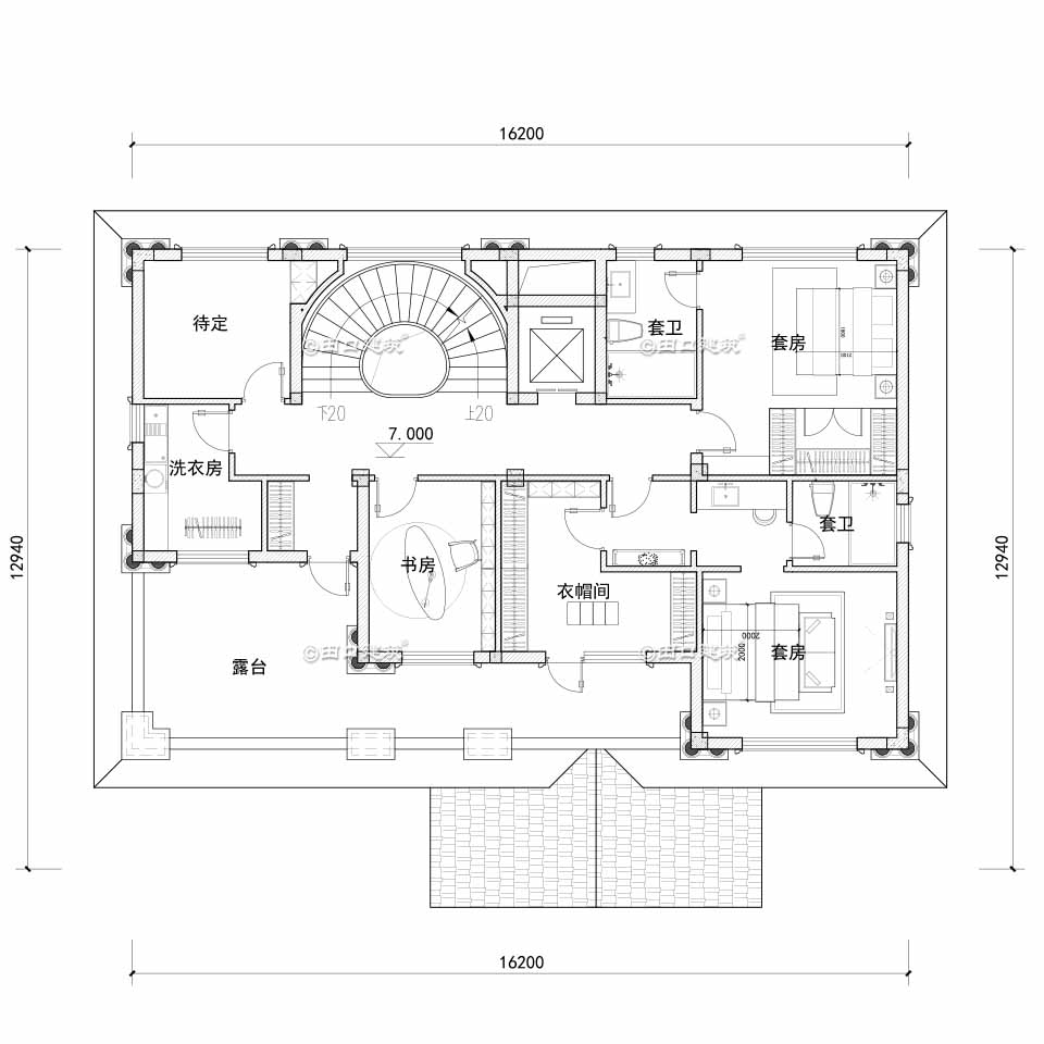
▲三層平面圖
三層:東面大小兩個套房、書房、洗衣房、露臺;
造型設計

▲東南角鳥瞰圖

▲正立面透視圖

▲東南角透視圖

▲西南角透視圖

▲西北角透視圖
END