項目概況
本項目總建筑面積406.52㎡,其中地下室27.14㎡,一層建筑面積為126.46㎡,二層建筑面積為126.46㎡,三層建筑面積126.46㎡。

▲正立面圖
戶型設計

▲一層平面圖
一層:外廊、玄關、客廳、餐廳、廚房、老人房、公衛(wèi)、儲藏室;

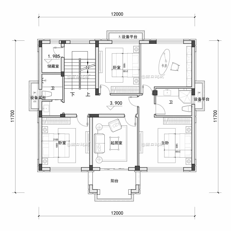
▲二層平面圖
二層:一套房(帶書房)、兩臥室、起居室、錯層儲藏室(樓梯休息平臺開門)、陽臺;
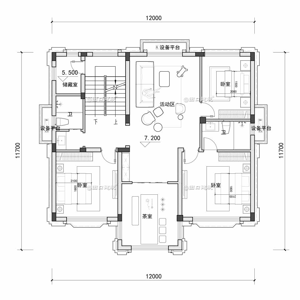
▲三層平面圖
三層:一套房、兩臥室、活動區(qū)、茶室、公衛(wèi)、錯層儲藏室(樓梯休息平臺開門);
造型設計

▲西南角鳥瞰圖

▲東北角鳥瞰圖

▲正立面透視圖

▲西南角透視圖

▲東南角透視圖

▲東北角透視圖

▲門廊透視圖
END